Cork kitchen flooring is simple to install and supply a shock absorbing feel specifically when you are standing in the home for hours which are long. Being forewarned is as well as being forearmed. It will not lose the finish of its with cleaning in the lung haul. You need to contemplate very carefully whether there's any high traffic location in your kitchen.
Kitchen Floor Plan Design Ideas
Wood kitchen flooring delivers several of the biggest number of choices of any flooring information on the market today. There's kitchen laminate flooring that is a great mixture of attractive design of inexpensive as well as sturdy wood, low maintenance benefits of laminate. Special attention, though, has to be done when maintaining the state of laminate flooring since it's very sensitive to dirt as well as scratches.
Kitchen Colors Tips KITCHEN COLORS Guide!: Kitchen Floor Plans
Remember that the primary points to consider while selecting upon the kind of kitchen area flooring shouldn't constantly be the strategy you would like the floor to appear but focus on the components durability, ease of maintenance as well as power before you think about the spending budget. Locating the best buys on bamboo kitchen flooring is not difficult when you are using the Internet.
Kitchen Plans – Layout Designs That Work for Home Decor
Kitchen with Vaulted Ceiling Kitchen ideas new house, Affordable interior design, New homes
Open Concept Kitchen Living Room Design Ideas
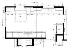
kitchen floor plan designs kitchen floor plan designs Flickr
22 Best Grey Hardwood Floors with Maple Cabinets Unique Flooring Ideas
Small Kitchen Design Plans Layout : Kitchen Design Layout : The most obvious spot is to hang a
Kitchen Plan
Commercial Kitchen Design of Dirties – Viahouse.Com
Kitchen False Ceiling Design by Star interior contractor KreateCube
Kitchen Floor Plans
Make Perfect Kitchen Design Layout Modern Kitchens – House Plans #123509
3 Bedroom Apartment Building- Autocad Architecture dwg file download – Autocad DWG Plan n Design
25 Awesome Farmhouse Kitchen Design And Ideas To Try – Instaloverz
Related Posts:













