The great thing is the fact that there are several choices on the way you are able to have a beautiful, worth it flooring. The type of flooring you select for the basement of yours will depend on individualized preference as well as prospective weather elements. Basement flooring has several types out in the industry, making the choice quite difficult.
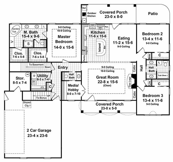
One Story Walkout Basement Floor Plans
Before going out and purchasing some kind of basement flooring products and solutions you are going to want to consider what the basement of yours is being utilized for. In case you're planning a basement finishing project, one of the primary areas would be the flooring type you'll be putting in. This particular strategy can prevent big harm to the flooring of yours down the road.
17 Best images about Floor Plan on Pinterest Craftsman, One story houses and Bath
You might have never thought you would be able to lay a huge amount of consideration in the color and decoration of the garage of yours, but polyurea flooring allows you to do just that! The basement of yours as well as garage will be converted from filthy catch all rooms to places that you are able to really feel proud of, and comfortable in. This will make it terrific for basements.
Adobe / Southwestern Style House Plan – 3 Beds 2 Baths 1600 Sq/Ft Plan #1-1304 – Houseplans.com
Country Style House Plan – 4 Beds 2.5 Baths 2000 Sq/Ft Plan #21-145 – Houseplans.com
#Walkout Basement Archives – HousePlansBlog.DonGardner.com
European Style House Plan – 3 Beds 2.5 Baths 2021 Sq/Ft Plan #21-242 – Houseplans.com
Two-Story House Plan with Walk-Out Basement – 61039KS Architectural Designs – House Plans
Two-Story House Plan with Walk-Out Basement – 61039KS Architectural Designs – House Plans
3 Story Open Mountain House Floor Plan Asheville Mountain House Mountain house plans
House Plans with Walkout Basements – Dreamhomesource.com
Walkout Basement Floor Plans from top house plans designers, Designs Direct.
Victorian Style House Plan – 1 Beds 1 Baths 708 Sq/Ft Plan #25-4773 – Houseplans.com
Floor Plan Reviewused your ideas
Waterfront House Plans The House Plan Shop
Cottage Style House Plan – 3 Beds 2 Baths 1374 Sq/Ft Plan #17-2018 – Houseplans.com
Related Posts:













