This may basically increase the value of the home of yours by 3 to 4 times the sum of money you will have to invest into your garage renovation to make this a reality. They provide cabinets, racks etc. Probably the most popular widths of rolled garage flooring are 7. Garage flooring shouldn't be an issue that everyone is knowledgeable about. It is not just cheaper, but may really well be more durable.
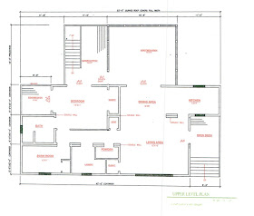
Shipping Container Garage Floor Plan
It may be worth having to pay a specialist mover for assistance or even bribing a neighbor, but along with the heavy lifting out of the way, putting on garage flooring of any style is generally quite simple. Therefore, good care and maintenance should be given for the garage floors coatings fitted and any spills try to cleanse using qualitative cleaners.
Modern Shipping Container 4 Bedroom House Design Floor Plan
The best way to see if the garage floor of yours is going to have this particular paint applied to it's by carry out an extremely simple test. One of the more famous designs of all time is the checkered blackish and white look. In addition, it would likely provide for a much more pleasing to look at floor in the process.
plans garage small story cabin plans garage floor residential underground… Shipping container
Floor plans, Container house, Small house
HonoMobo Create Shipping Container Homes Above Garages
It’s getting easier to fulfill your dreams of living in a shipping container above a garage
Efficient Floor Plan Ideas Inspired By Shipping Container Homes
Shipping Container Homes Prices Shipping crate houses Shipping container house plans
Floor Plan for a Shipping Container home Shipping container house plans, Shipping container
Container House Construction Details Joy Studio Design Gallery – Best Design Container house
Sense and Simplicity: Shipping Container Homes – 6 Inspiring Plans
2013 best Floor Plans images on Pinterest Architecture, Floor plans and Small houses
Second Quadruple Shipping Container Duplex Getting Wrapped Up on Lehall St. Swamplot
big-shipping-container-house-with-exterior-stairs – RemodelingImage.com – Remodel Ideas and Costs
Container Home Design-not sure about the separate garage. Architecture Pinterest House
Related Posts:














